
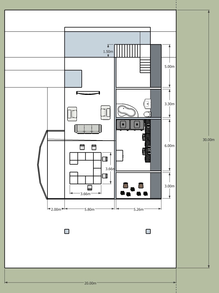
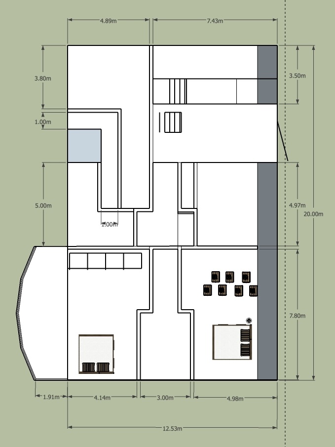
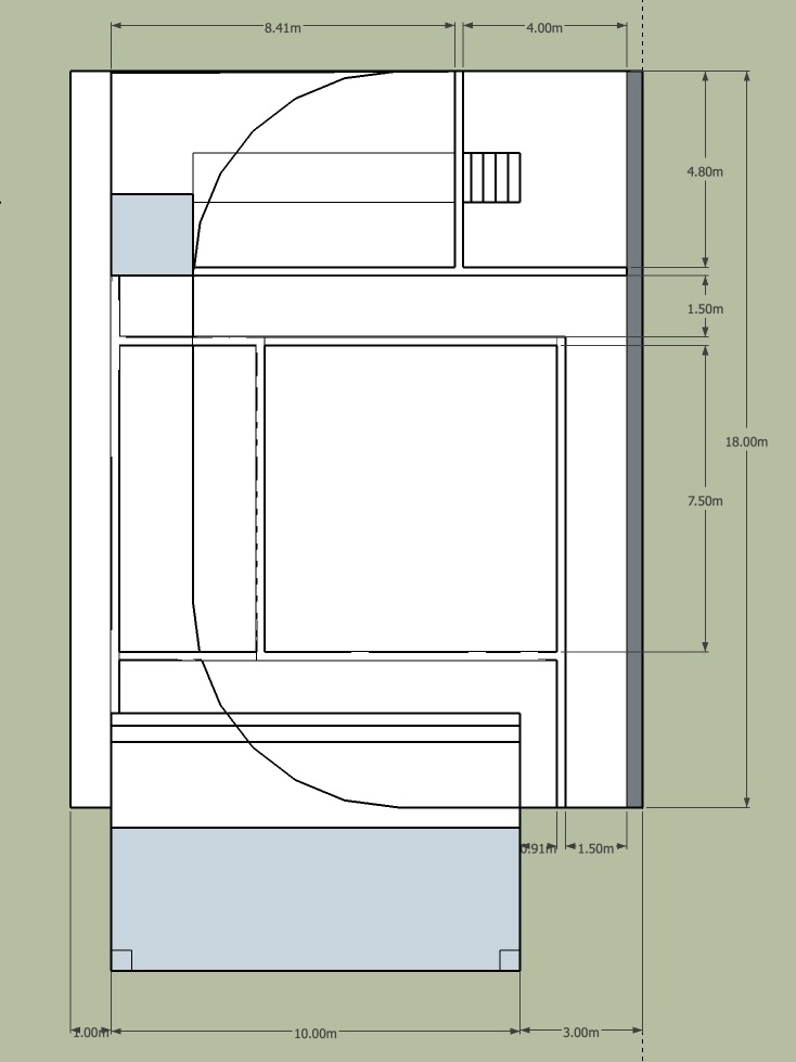
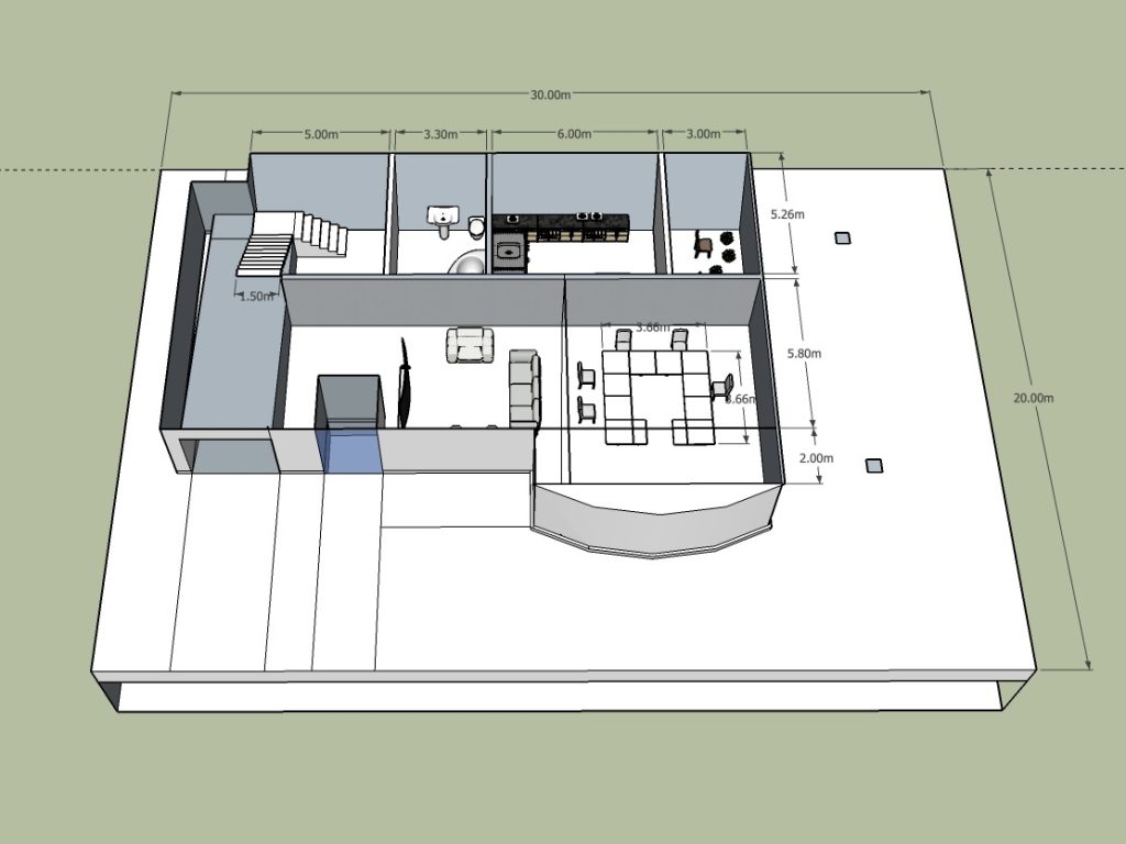
Noo House
2018
Medium
Aluminum, foam board, wood dowel, plastic rod, LED strip, molding clay, and various misc. parts
Dimensions
Scaled model: ~ 60 × 40 × 20 cm
Cat playground: ~ 15 × 10 cm
Credit
Yufeng Chi, Chuheng Shi, Xinyue Tao
In our project to design a dream house, all of us cat lovers felt it wouldn’t be complete without our furry companions. So, when adding the finishing touches to our scaled architectural model, I decided to include two clay cats and their ‘two-leg’ feeder, injecting a bit of playfulness into our creation.











